一、高效送風口的定義與作用
高效送風口是通風空調系統的重要組成部分,高效送風口主要功能是將經過高效過濾的空氣均勻地送入潔凈廠房內部,同時將室內的空氣排出,以維持潔凈廠房內的空氣潔凈度。

二、高效送風口在潔凈廠房建設中的重要性
保證空氣質量:高效送風口通過其內置的高效過濾器,能夠有效濾除空氣中的塵埃、細菌等污染物,確保潔凈廠房內空氣的潔凈度達到規定的標準。
優化氣流分布:高效送風口的設計能夠實現氣流的均勻分布,避免因氣流不均導致的局部污染,確保整個潔凈廠房內空氣質量的一致性。
降低能耗:高效送風口通過合理的氣流組織,減少空氣的循環次數,從而降低通風系統的能耗,提高能源利用效率。
提高生產效率:潔凈廠房內空氣質量的好壞直接影響到產品的質量。高效送風口確保了生產環境的穩定,有助于提高生產效率和產品質量。
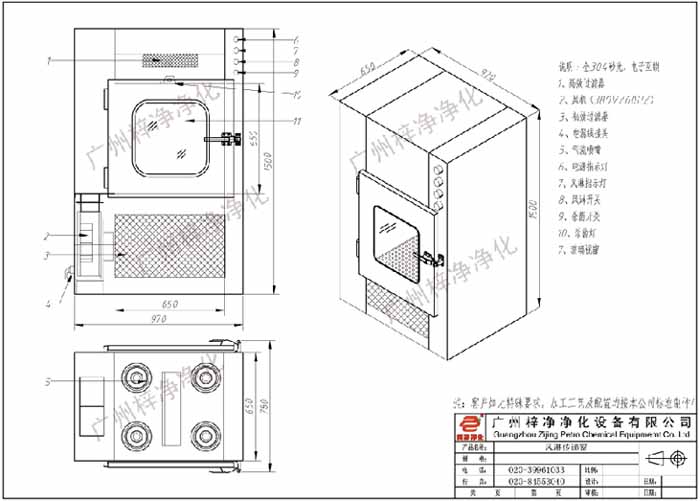
三、高效送風口的選型與安裝
選型:選擇高效送風口時,需根據潔凈廠房的潔凈度等級、送風量、氣流分布要求等因素綜合考慮,確保選用的高效送風口能夠滿足潔凈廠房的特定需求。
安裝:高效送風口的安裝位置、角度和高度都需要精心設計,以保證氣流能夠有效覆蓋整個潔凈區域,同時避免氣流死角。高效送風口規格|型號|尺寸

四、高效送風口的維護與管理
定期檢查:定期檢查高效送風口及其過濾器的性能,確保其處于良好工作狀態。
清潔與更換:根據使用情況和過濾器濾材的壽命,定期清潔或更換過濾器,以保證過濾效果。
五、結語
高效送風口是潔凈廠房建設中不可或缺的凈化設備。高效送風口不僅能夠保障潔凈廠房的空氣質量,還能夠優化生產環境,提高生產效率。因此,在潔凈廠房的設計、建設和維護過程中,應高度重視高效送風口的選擇、安裝和維護,以確保潔凈廠房能夠高效、穩定地運行。
推薦閱讀:500風量高效送風口,1000風量高效送風口,可更換一體化高效送風口,液槽高效送風口,高效送風口四件套等等。
]]>
一、高效送風口安裝準備
材料檢查:高效送風口在安裝前,需對高效送風口及其配件進行嚴格檢查,確保所有材料符合潔凈度要求,無損壞。
工具準備:準備適合高效送風口安裝的專業工具,如扳手、螺絲刀、水平儀等。
現場清潔:確保高效送風口安裝現場無塵埃、無雜物,避免安裝過程中污染送風口。

二、高效送風口安裝步驟
定位:根據潔凈車間的氣流組織圖和設計要求,確定高效送風口的位置。
支撐結構安裝:先安裝高效送風口的支撐結構,確保其穩固、水平,且與墻面或吊頂的間距符合規范。
高效送風口安裝:將高效送風口固定在支撐結構上,使用螺絲或專用卡具,確保接口密封良好。
連接管道:將高效送風口的進出風管道與風管系統連接,使用法蘭連接或軟連接,確保接口嚴密。
測試與調試:高效送風口安裝完成后,進行風量測試,確保送風口的風量符合設計要求。同時,高效送風口觀察氣流方向和分布,調整至符合潔凈度的要求。高效送風口規格|型號|尺寸

三、高效送風口安裝注意事項
密封性:高效送風口的接口和連接處必須密封良好,防止空氣泄漏和塵埃侵入。
水平度:高效送風口安裝后,高效送風口應保持水平,避免氣流偏離設計路徑。
清潔:高效送風口安裝過程中避免塵埃和污物附著在送風口上,安裝完成后應徹底清潔。
檢查:高效送風口安裝完成后,應進行全面檢查,包括送風口位置、風量、氣流方向等,確保符合設計規范。
推薦閱讀:500風量高效送風口,1000風量高效送風口,可更換一體化高效送風口,液槽高效送風口,高效送風口四件套等等。

四、高效送風口維護與保養
定期檢查:定期檢查高效送風口及其連接部件,確保無松動、損壞。
清潔保養:根據潔凈度要求,定期對送風口進行清潔和保養。
記錄:對安裝和維護過程進行詳細記錄,以便跟蹤和維護。
高效送風口的安裝是潔凈廠房建設和維護的重要環節,嚴格按照規范進行安裝和保養,才能確保潔凈車間的空氣質量達到預期要求,保障生產安全和產品質量。
]]>3.0.1 潔凈室及潔凈區內空氣中懸浮粒子空氣潔凈度等級應按表 3.0.1?確定。
表 3.0.1 潔凈室及潔凈區空氣中懸浮粒子空氣潔凈度等級

注:①每個采樣點應至少采樣 3?次。
②本標準不適用于表征懸浮粒子的物理性、化學性、放射性及生命性。
③根據工藝要求確定 1~2?種粒徑。
④各種要求粒徑 D?的粒子最大允許濃度 Cn?由公式(3.0.1)確定,要求的粒徑在 0.1~5μm 范圍,包括?0.1μm 及?5μm。

式中 Cn—大于或等于要求粒徑的粒子最大允許濃度(pc/m3)。Cn?是以四舍五入至相近的整數,有效位數不超過三位數。
N—空氣潔凈度等級,數字不超出?9,潔凈度等級整數之間的中間數可以按?0.1?為最小允許遞增量。
D—要求的粒徑(μm)。0.1—常數,其量綱為μm。
3.0.2 空氣潔凈度等級所處狀態(空態、靜態、動態)應與業主協商確定。
3.0.3 空氣潔凈度等級的測試方法按附錄 C?要求進行。
了解詳情可參考:GB 50073-2001 潔凈廠房設計規范

了解詳情可參考:GB 50073-2013 潔凈廠房設計規范
也可了解更多:潔凈廠房設計規范
]]>(本標準2013-09-01起被GB 50073-2013 潔凈廠房設計規范代替)

GB 50073-2001 潔凈廠房設計規范是根據建設部、計委計綜合[1992]490?號和[1992]建標字第 10?號文的要求,由我部負責主編。
具體由中國電子工程設計院會同有關單位共同對《潔凈廠房設計規范》GBJ 73-84?修訂而成。
GB 50073-2001 潔凈廠房設計規范在修訂過程中,修訂組結合我國潔凈廠房設計建造和運行的實際情況,進行了廣泛的調查研究和必要的測試工作,認真總結了《潔凈廠房設計規范》GBJ 73-84?執行 10?多年來的經驗,等效采用國際標準 ISO14644-1《潔凈室及相關受控環境,第一部分-空氣潔凈度等級》的潔凈度等級。
廣泛征求了全國有關單位的意見,最后由我部會同有關部門審查定稿。
本規范共 9?章和 4?個附錄。
GB 50073-2001 潔凈廠房設計規范其主要內容有:總則、術語、空氣潔凈度等級、總體設計、建筑、空氣凈化、給水排水、氣體管道、電氣等。
GB 50073-2001 潔凈廠房設計規范–總則
1.0.1 潔凈廠房設計必須做到技術先進、經濟適用、安全可靠、確保質量,并應符合節約能源、勞動衛生和環境保護的要求。
1.0.2 本規范適用于新建、擴建和改建潔凈廠房的設計。
1.0.3 潔凈廠房設計應為施工安裝、維護管理、檢修測試和安全運行創造必要的條件。
1.0.4 潔凈廠房設計除應按本規范執行外,尚應符合現行的有關強制性國家標準、規范的規定。
點擊此鏈接下載:? GB 50073-2001 潔凈廠房設計規范
強烈推薦下載<<GB 50073-2013 潔凈廠房設計規范>>
可愛的站長為大家提供兩種<<GB 50073-2013 潔凈廠房設計規范>>下載方式哦。
點擊此鏈接下載:??GB 50073-2013 潔凈廠房設計規范
也可以復制右側網址直接打開下截: ?https://pan.baidu.com/s/1hqVML4N3z4m4bWDLY6PzYw
百度網盤文件鏈接,請放心下載!如果能幫助大家,也是一種快樂~~
]]>需要下載《GB 50073-2013 潔凈廠房設計規范》的朋友可以到網站底部下載,也可以到文章底部下載~~

說明事項:
《GB 50073-2013 潔凈廠房設計規范》,本規范是根據原建設部《關于印發<2002-2003年度工程建設國家標準規范制訂、修訂計劃的通知》(建標函【2003】102號)的要求,由中國電子工程設計院會同有關單位共同對《潔凈廠房設計規范》GB 50073-2001修訂而成。
《GB 50073-2013 潔凈廠房設計規范》在修訂過程中,修訂組結合我國潔凈廠房設計建造和運行的實際情況,進行了廣泛的調查研究和測試,認真總結了《潔凈廠房設計規范》GB 50073-2001多年來實施的經驗,廣泛征求了全國有關單位的意見,最后經審查定稿。
可愛的站長為大家提供兩種<<GB 50073-2013 潔凈廠房設計規范>>下載方式哦。
點擊此鏈接下載:??GB 50073-2013 潔凈廠房設計規范
也可以復制右側網址直接打開下截: ?https://pan.baidu.com/s/1hqVML4N3z4m4bWDLY6PzYw
百度網盤文件鏈接,請放心下載!如果能幫助大家,也是一種快樂~~
]]>