手術室送風天花阻尼網|網孔板|均流網
手術室送風天花阻尼網又稱為手術室送風天花網孔板、手術室送風天花均流網、均流膜,主要分為四個部分組成:鋁合金框架包邊、300目雙層阻尼網、不銹鋼骨架、卡簧(均流網非廣州梓凈產品,更換時需要測量卡簧中心距、鋁合金外框需要測量邊長的端點到斜角位置距離)。此產品不做過多介紹,直接上圖。




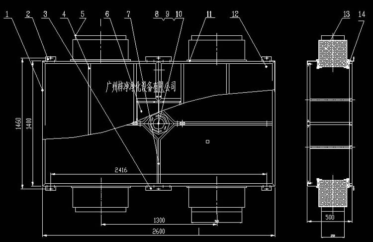
手術室送風天花制作要求選配:
1、A型箱體為冷軋鋼板靜電噴塑處理,冷軋鋼板靜電噴塑做圍護及進風過濾框,含雙層DPP均流網及中速氣流補償裝置。
2、B型外箱體采用SUS304不銹鋼制作。抗腐蝕、耐酸堿、視覺更美觀、強度高,同時,保留雙層DPP均流網及中速氣流補償裝置。
3、手術室送風天花阻尼層均流可選用鋁質網孔板、304不銹鋼網孔板、冷軋鋼板烤漆網孔板、雙層DPP均流網。

手術室送風天花特點:
1、送風形式:層流送風天花分高效過濾器滿布(平鋪)送風和高效過濾器側布(側鋪)送風兩種。
2、氣流狀態:送風天花下部氣流均勻,氣流滿布率≧95%,達到行業檢測的相關參數要求。
3、均流模式:多塊網孔板組合,出風均勻,靜電粉末噴涂,和墻頂面同色,表面效果好。
4、工廠制造,現場采用標準連接件拼接組裝,安裝方便、簡單,設備安裝質量有保障。
5、維護操作:國標規格過濾器,更換快捷、方便,易維護。
6、過濾器壓差密封技術:保證潔凈區內無泄漏。
7、過濾器滿布技術:壓差低,超長使用壽命。
8、穩定的產品質量,供貨周期短。
8、高分子阻尼層送風網面:低阻力,風速均勻。
9、均流度滿足最新規范要求:不均勻度小于15% 。
10、變級別手術室:擴大手術室使用范圍,提高手術室使用率;同時運行中節約能源 。
11、燈柱蓋板小于250mm×250mm——符合最新版規范要求。

更多相關產品介紹:手術室送風天花
手術室送風天花阻尼網可根據用戶需求定制!
