千級層流送風天花又叫1000級高效送風天花,層流送風天花配高效過濾器有三種選擇,組合式高效過濾器,亞高效過濾器和液槽式高效過濾器三款等。
I級送風天花配8個高效過濾器,Ⅱ級送風天花6個高效過濾器,Ⅲ級送風天花4個高效過濾器等。

層流送風天花分別為百級、千級、萬級層流送風天花、層流送風天花是現代醫院手術室必用的一種凈化裝置。層流送風天花它的裝置是根據國內外好的阻漏層技術,依托手術室潔凈送風天花裝置,使用本設備可合理分布潔凈室內的氣流,有效保證室內的潔凈度(送風面100級)。
千級層流送風天花可廣泛應用于醫院潔凈手術室、潔凈病房、潔凈動物房等項目。層流送風天花裝置是根據國內外好的阻漏層,使用本設備可合理分布潔凈室內的氣流,有效保證室內的潔凈度(送風面100級),箱體板金制作,表面烤漆。

千級層流送風天花是采用空氣潔凈技術對微生物污染采取程度不同的控制,達到控制空間環境中空氣潔凈度適于各類手術之要求;并提供適宜的溫、濕度,創造一個潔凈舒適的手術空間環境
送風天花主要應用在手術室中,凈化層流手術室可分為100000級、10000級、1000級、100級四級。
送風天花分為三個級別:
百級送風天花:Ⅰ型
千級送風天花:Ⅱ型
萬級送風天花:Ⅲ型

送風天花過濾器更換標準:
送風天花高效過濾器:阻力已超過額定初阻力100Pa,或等于2×設計或運行初阻力(低阻亞高效時為3倍)1年以上,超過標準隨時更換。
“梓凈”牌層流送風天花高效過濾器有組合式高效過濾器、無隔板高效過濾器、有隔板高效過濾器三種,可根據需要選配。
送風天花的設計特點:
百級送風天花即滿布高效過濾器的送風頂棚,有多種形式,本設計采用液槽密封形式的送風天花。
目前,液槽密封結構有兩種形式。
其一,高效過濾器上裝,即帶液槽的高效過濾器從上部裝入與之配套的框架刀口上,依靠高效過濾器邊框液槽內的密封膠與框架刀口來實施對氣流的密封。
這種結構需要的靜壓箱高度較大,否則,高效過濾器調轉不開。雖然高效過濾器在刀口框架上方,但并非在吊頂夾層內安裝,而是在潔凈室內把高效過濾器穿過框架口伸入靜壓箱后再轉向放于框架的刀口上。所以,夾層空間小的話,高效過濾器轉不開。
其二,高效過濾器下裝,即高效過濾器帶液槽的邊在下方,帶刀口的框架位于液槽的上方,與第一種情況正好相反,框架的刀口向下,把高效過濾器伸入靜壓箱內,液槽邊在刀口正下方,用壓件托住高效過濾器,使其邊框液槽與刀口接觸來密封空氣,高效過濾器的重量由4個壓件承擔。

帶刀口的框架常用的材質有專用鋁合金型材、不銹鋼型材。鋁型材運輸、安裝比較方便,可工廠化制作現場組裝。
但在連接縫處需靠密封膠密封,組裝后鉚釘外露,不太美觀。不銹鋼型材采用氬弧焊焊接,比鋁型材的插件鉚接密封性好。
但如果在施工現場焊接,質量不好保證。如果送風天花面積小的話可工廠化制作,現場安裝,這樣質量可得到保證。如果送風天花面積大的話,工廠化制作后的成品運輸又有困難。
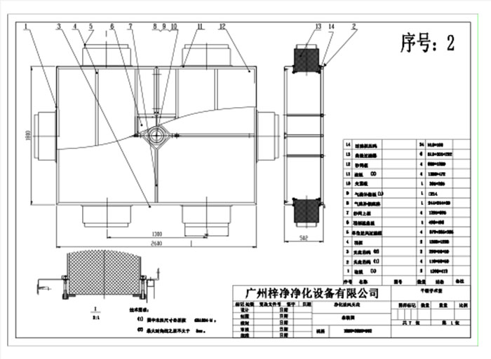
在本設計中綜合上述優缺點,釆 用不鎊鋼型材工廠化泡作。由千級送風夭花的面積較大,考慮到運輸的因耒,把送風夭花分割 成三部分(即用25mm厚的彩考峽芯板將靜箱分害威三等分)。
每一部分安裝一整片刀口框架,把每一片分割成15個高效過濾器單元。 這樣做比采用一個大的靜壓箱均效果,但整個送風面的盲區有所增大,不過,經驗算滿 布比能滿足垂直單向流的荽求。盡如此,在本設計中釆用了高效過濾器下吾媒設阻尼孔板 來消除送風面盲區的影響,以保正百級單向流氣流組織。
百級送風天花采用技術層流凈化天花,層流天花是潔凈手術室、層流病房的凈化送風末端,它兼有高效過濾,均流及氣流補償作用。
推薦閱讀: Ⅲ級手術室送風天花 手術室送風天花阻尼網
